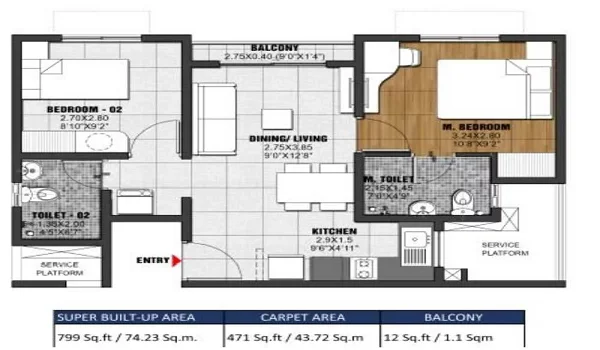
| Unit Type | Size | Price | |
|---|---|---|---|
| 2 BHK | 775 - 1103 Sq.Ft | ₹ 1 Cr Onwards* | Price Breakup |
| 3 BHK | On Request | ₹ 1.52 Cr Onwards* | Price Breakup |
Virtual Tour
360° View
Founded by Mr. K.H. Oswal on 15 August 1966, the Kumar Properties Group is a well diversified, value driven enterprise. 135 projects completed and More than 35,000 satisfied and happy families are our brand ambassadors and our true strength. Over 35,000 happy families from diverse socio-economic and cultural background, over 1,000 satisfied large, medium and small businesses, all enjoying the comforts and pleasures of living in environment-friendly, well-designed, fully-equipped residential complexes, or working out of swanky commercial premises. That is the Kumar Properties' record of achievement in core service offerings. A record of not mere construction, but creation of complete living, working and business spaces, with the latest amenities and facilities integrated in a holistic manner and backed by lifelong maintenance.
|
|
|
|